À LOUER – BUREAUX 160 m² DIVISIBLES – FORT-DE-FRANCE – ZAC RIVIÈRE ROCHE

A LOUER, Bureau

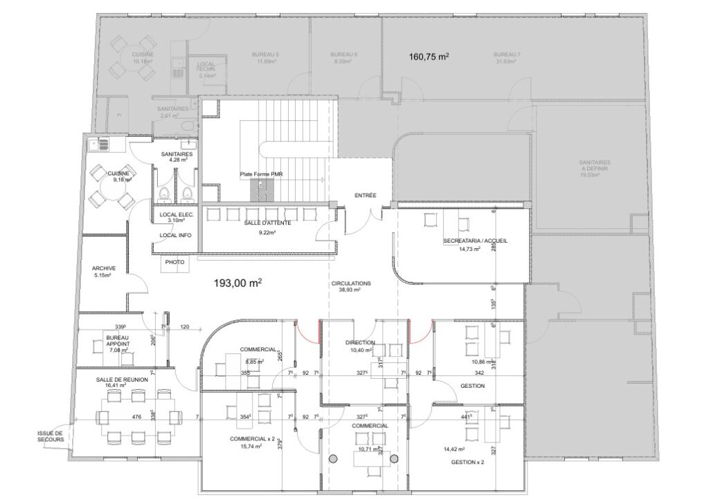
À LOUER – BUREAUX 160 m² DIVISIBLES – FORT-DE-FRANCE – ZAC RIVIÈRE ROCHE

Idéalement situé au cœur de la zone d’activité commerciale de Fort-de-France, ce plateau de bureaux d’environ 160 m² offre un cadre de travail fonctionnel, modulable et très facilement accessible, à proximité immédiate des principaux axes routiers.

Caractéristiques du local :

• Surface utile : environ 160 m²

• Situé au 2ᵉ étage

• Espaces modulables et divisibles selon vos besoins et votre activité

Atouts :

• Localisation stratégique à Fort-de-France

• Accès rapide à la Rocade et aux zones d’activités

• Convient parfaitement pour : bureaux, professions libérales, services, cabinets ou agences

Conditions financières :

• Loyer TTC : 3 139,45 €

• Provisions sur charges TTC : 274,80 €

• Dépôt de garantie : 5 787,00 €

• Frais d’agence : 6 275,90 €

Contact :

Franck : 0696 389 585

https://qr.getintouch.pro/page/mn-immo05

Me joindre

Je vous invite à privilégier les appels téléphoniques et les messages WhatsApp ! Vous pouvez également remplir le formulaire de contact, je reviendrai vers vous au plus vite.

Email

maud@mn-immobilier.com

Contactez-moi !

Agence immobilière

Siret : 901 109 041

Carte Professionnelle :
« Transactions sur immeubles et fonds de commerce ».
CPI : 972120230 00000008

 
Police Assurance : 120 137 405

Adresse

309 Lot La Caraïbe
97222 CASE-PILOTE

Osez !

RGPD & consentement

2 + 11 =